Skip to main content
The Gerin-Lajoie Studio

The Gerin-Lajoie Studio in the Leighton Artist Studios

This bright, spacious studio with stepped roofline that echoes the form of Rundle Mountain, is best suited to visual artists.  

Named after its architect, Guy Gerin-Lajoie, this studio provides ample daylight through north-facing skylights, and a beautiful picture window to the south side of the studio. Its large walls provide a clear, vertical work surface for artists. A ramped loading area to the back of the studio allow for small equipment and materials to be loaded in and out onto the gravel path. 
 

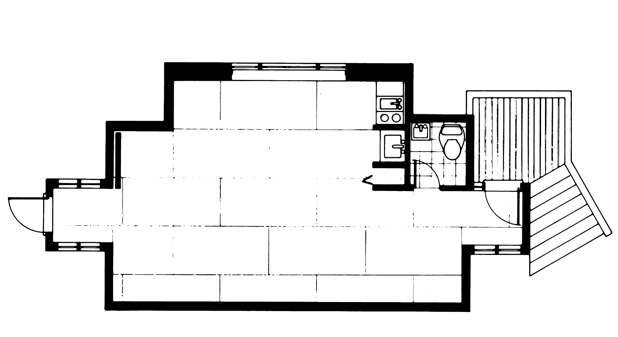
Floor dimensions:

17.72 ft wide x 37.73 ft long 

The Gerin-Lajoie Studio amenities include:

  • 5’3” wide motorized standing desk
  • 96” x 36” workbench (manually adjustable height)
  • Two 72” x 30” folding work tables
  • Basic drafting table 20’ X 10’ 
  • Retractable greenscreen
  • Video projector mounted to roof truss
  • Basic easel
  • Lounge seating
  • Kitchenette with sink, microwave, bar fridge, tea and coffee-maker
  • Computer monitor, keyboard, wireless printer, and Bluetooth bookshelf speakers
  • Portable, short-throw video projector
  • Six-tier rolling wire shelf unit
  • 8’ stepladder 

Floor Plan

The Gerin-Lajoie Studio Floorplan